40階角部屋で犬猫と暮らす家🐕🐈

お問い合わせ番号|hk3-0007
- 価格/管理費
- 1億6,500万円 / 21,700円
- 築年月
- 2024/08
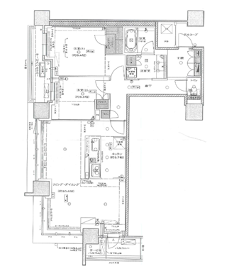
- 間取り
- 2SLDK
- 専有面積
- 88.67m²
- 修繕積立金
- 8,900円
犬猫不動産は物件情報をブログ形式でお伝えしております。 空室状況については、都度お問合せくださいませ。
最終更新日: 2026年4月7日
「せっかくなら、景色も暮らしもこだわりたい」
そんな方におすすめしたいタワーレジデンスです。
場所は南堀江エリア。
オレンジストリート徒歩圏の人気エリアで、
暮らしやすさとおしゃれな街並みをどちらも楽しめます。
今回のお部屋は40階の高層階、さらに角住戸。
窓から広がる景色と、たっぷりの採光が魅力の空間です。
専有面積は88㎡超のゆとりある2LDK。
リビングは広く、
ワンちゃんがのびのび過ごし、
猫ちゃんもお気に入りの場所を見つけてくつろげる設計です。
さらに未入居物件のため、
室内はとてもきれいな状態。
コンシェルジュサービスやスカイラウンジなど、
タワーマンションならではの共用施設も充実しています。
「立地」「眺望」「広さ」
そのすべてを叶えたい方へ。
犬や猫と一緒に、
ワンランク上の暮らしを始めたい方におすすめの一室です🐾
- アクセス
-
大阪メトロ千日前線 桜川駅 徒歩4分
大阪メトロ長堀鶴見緑地線 西長堀駅 徒歩4分 - 所在地
- 大阪府大阪市西区 南堀江3丁目
- 向き
- 北西
- 階数
- 40階/ 地上46階
- 物件種別
- 中古マンション
- 建物構造
- RC
- 総戸数
- 4001
- 駐車場
設備・条件
小型犬と住める 小動物と住める ペット可能 IHコンロ システムキッチン ディスポーザー・コンシェルジュサービス
・スカイラウンジ/パーティールーム
・ワークスペース/ゲストルーム
・オール電化
・ディスポーザー
・インターネット(EO光)
Loading...
オススメPOINT
眺望も広さも妥協せず、ペットと上質な暮らしを楽しみたい方におすすめです。

※物件掲載内容と現況に相違がある場合は現況を優先と致します。
お問い合わせ番号|hk3-0007
LINEでお問い合わせ
1.下記の物件番号をコピーしてください。
2.「LINEでお問い合わせ」ボタンを押すと、トーク画面が開きます。
3.【追加】をタップします。
4.物件番号をペーストしてお問い合わせ内容をご入力ください。
お電話でお問い合わせ
営業時間 10:00〜17:00
定休日 水曜日































