角部屋&陽当り良好in谷町九丁目

お問い合わせ番号|tt1-0063
- 家賃/共益費
- 6.9万円 / 8,000円
- 敷/礼/保
- -- / 10万円 / --
- 築年月
- 1989/10
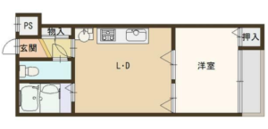
- 間取り
- 1LDK
- 専有面積
- 32.08m²
犬猫不動産は物件情報をブログ形式でお伝えしております。 空室状況については、都度お問合せくださいませ。
最終更新日: 2025年9月4日
大阪メトロ千日前線「谷町九丁目」駅🚉より徒歩7分🚶
大阪メトロ谷町線「四天王寺前夕陽ヶ丘」駅🚉より徒歩6分🚶
近鉄線「大阪上本町」駅🚉より徒歩10分🚶
コンビニやスーパー、飲食店も
徒歩圏内に充実しており、
とても便利な立地です。
専有面積は32.08㎡で1LDK
2面採光・角部屋なので
陽当りも風通しも良好です。
洋室とリビングの間は引き戸で仕切れるため、
生活スタイルに合わせて空間の使い方を調整できます。
便利な立地&広さとコスパのバランスが
揃ったお部屋です(❁´◡`❁)
- アクセス
-
大阪メトロ千日前線 谷町九丁目駅 徒歩7分
大阪メトロ谷町線 四天王寺前夕陽ヶ丘駅 徒歩6分
近鉄線 大阪上本町駅 徒歩10分 - 所在地
- 大阪府大阪市天王寺区 上汐4丁目
- 向き
- 西
- 階数
- 6階/ 地上8階
- 物件種別
- マンション
- 建物構造
- 鉄骨造
- 総戸数
- 23
- 駐車場
設備・条件
角部屋 ガスコンロ 三口コンロ システムキッチン 洗髪洗面化粧台 温水洗浄便座 室内洗濯機置き場 オートロック TVドアホン 防犯カメラ 都市ガス エレベータオススメPOINT
■アクセス便利な立地
■角部屋&2面採光で明るく開放感のある室内
■32.08㎡のゆとりある1LDK
■SOHO利用可能
■防犯カメラ・オートロック・モニター付きインターホンで安心のセキュリティ
お気軽にお問合せください

※物件掲載内容と現況に相違がある場合は現況を優先と致します。
お問い合わせ番号|tt1-0063
LINEでお問い合わせ
1.下記の物件番号をコピーしてください。
2.「LINEでお問い合わせ」ボタンを押すと、トーク画面が開きます。
3.【追加】をタップします。
4.物件番号をペーストしてお問い合わせ内容をご入力ください。
お電話でお問い合わせ
営業時間 10:00〜17:00
定休日 水曜日



































